安地建筑、景观、室内一体化作品--前进街道社区卫生服务中心

2019-12-16

  杭州钱塘新区一个越来越被人熟知的地方,昔日旷野滩涂,如今已成为投资创业的热土。随着社会经济的发展,城市建设的加快,医疗就医环境也是需要跟进城市建设的步伐。本次前进街道社区卫生服务中心设计希望以新型医疗综合体概念来发展新城区的医疗水平,以便充分服务社区居民


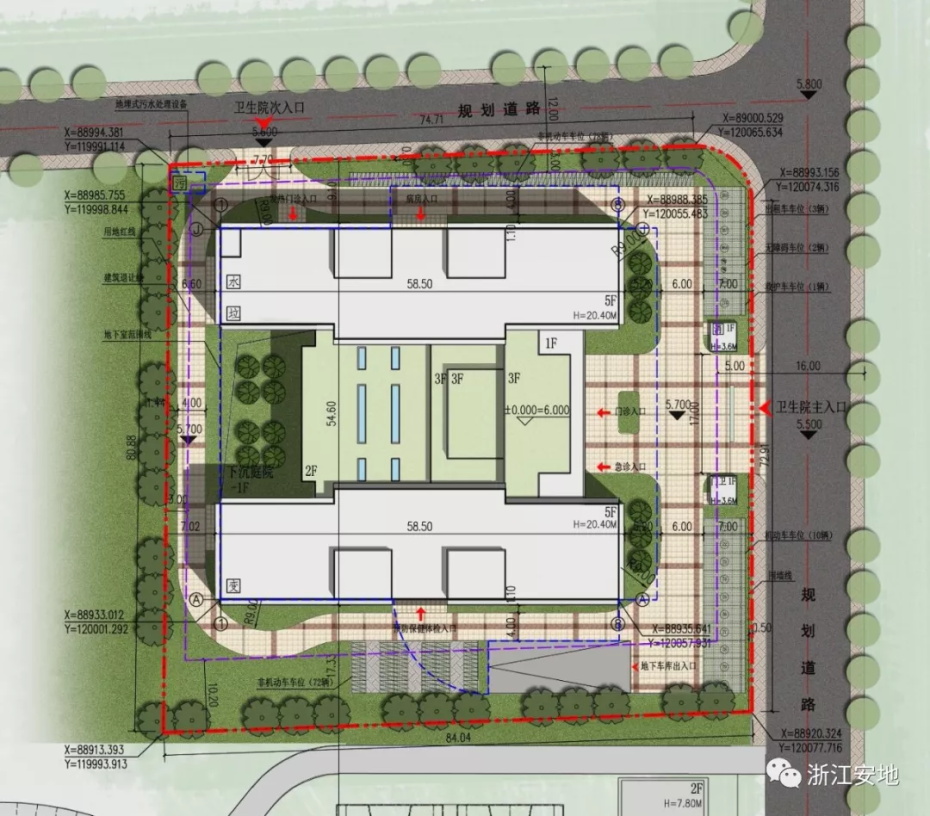
  项目位于东三路以西、江东二路以北,南面为蓝领公寓,场地总用地10亩,总建筑面积13498.5平方米,已与日前通过竣工验收投入使用



NO1.医疗综合体理念

  项目是集预防、保健、医疗、康复、健康教育及计划生育技术指导六位于一体的社区医疗卫生服务网络体系。它贯穿了一个居民的一生,使一个居民从生、老、病、死都能享有良好的基层医疗保障。然而,如此全能的服务却只有区区几十个医护人员,很多人员将兼顾门诊、住院、保健甚至行政管理等工作。

  为此,设计将以上诸多功能集中于一个小型综合体来考虑,集中面积打造共享的公共大厅和公共交通核,最大限度提高建筑空间的利用率。在一幢建筑内,医护人员与患者往来于门诊、医技、住院、保健等各功能模块相对方便快捷。

  室外场地也因此相对开阔和整洁,面向东侧道路开设的主入口和建筑南向也都有15米左右的后退空间,即方便车辆和行人的集散,又可打造整洁美观的外部环境,地下车库出入和消防环道布置简洁明了。地下室设食堂和汽车库,汽车库汽车流线整齐干净,可停67辆车,通过公共交通核可直达各层。



NO2.模块化医疗理念

  工字型医疗综合体概念需要清晰的体块组合设计,方便各类人员以最近路线到达目的地。

  在四方的用地内,引入一纵一横两条轴线,在轴线交叉的中间为交通模块,连接南北两栋建筑,形成一个整体的空间。南北两栋建筑为独立的医疗模块。两者联系紧密,各医疗模块均为尽端式的安静空间,无关人员不会穿过干扰。功能相近或需联系的模块相邻布置,方便往来。医疗模块之间设绿化平台和外廊连通,即解决了单元内消防疏散的双向要求,又方便了多职务医护人员的往来,同时还营造了绿色生态的诊疗空间。

  作为成长中的社区卫生服务中心,标准化的模块单元还将方便内部功能的灵活布置和有机更新。



NO3.医患分离、患患分离的交通理念

  清晰的模块单元组合使各功能流线井然有序,医疗环境也将更加洁净。

  场地主入口朝东,设置人流最多的门诊出入口,入口角落设置急诊入口。公共大厅设有开敞楼梯,鼓励就近健康步行上下,可达每一层的门诊功能模块。

  南向为预防、保健和体检出入口,通过单独交通核到达各功能模块。

  北向为病房入口,通过单独的交通核到达四到五层的病房。

  通过西北角场地次入口往里,为发热和肠道等隔离门诊模块。西北角为污物交通核,污物则通过污物电梯由地下室的污物垃圾站外运,做到洁污分流



NO4.人性化智慧医疗理念

  人性化的功能布置和智慧医疗的设计将极大地提高就诊效率,改善医患关系。

  底层各病人出入口只设缓坡,方便救护车和残疾人直达门口;设专门残疾人卫生间和无障碍电梯;急诊、全科门诊、输液、隔离门诊、药房、放射科、均设置在底层大厅边,位置醒目。

  二层解决了中医、妇科、妇保、慢性病门诊和体检的诊疗、检查、检验等功能,使病人在同一层完成就医,各医疗设备也得到最大化共用。

  三层设置妇幼保健、中心供应、预留门诊和多功能厅等单元。

  四层五层的北向模块日照景观朝向良好,设置住院部。

  四层南向部分为行政办公区域,视线开阔。

  五层南向部分为职工宿舍和职工俱乐部。

  中心消毒供应、手术、病房等单元内部均考虑洁污分流;放射科、药房、手术和食堂等单元则做到医患分流。

  移动网络的发展带来智慧医疗的兴起,方案不但考虑在每层的公共大厅设置挂号收费窗口,而且设置自助式智慧医疗的机器,方便病人远程挂号、就近缴费、电子支付等服务。



NO5.生态节能设计理念

  综合体的概念带来集中布置的建筑,方正的体型可将体型系数控制在最优状态,利于节能。门窗、墙体和屋面等围护结构中,采用断热型铝材、低辐射中空玻璃、陶粒加气混凝土砌块及保温装饰一体化铝板等材料。

  病房朝南布置,日照充分。其余主要空间和房间均做到自然通风及采光,节约日常使用能耗。

  通风对于医疗空间的空气洁净很重要,而且需要本地盛行的南北穿堂风。设计利用南面高层建筑的风效应,不但在公共大厅可以南北通风,而且南北两栋建筑通过公共廊道实现良好的通风。中间公共空间的屋顶设置屋顶绿化和采光天窗,不仅美化了建筑小环境,而且保证了检验科和多功能厅的自然采光。



NO6.清新活泼的造型理念

  作为新兴的钱塘新区,建筑力求打造新时代的特色。而作为医疗建筑,我们摈弃玻璃幕墙和石材幕墙的不环保、不安全的做法,以清新活泼的姿态展现建筑亲切的形象。

  建筑造型根据功能模块虚实分明,医疗单元模块立面开窗按照平面房间以凹进的独立点窗布置,强调了体块的雕塑感;交通模块设横向的格栅,通透的格栅后,绿意盎然,并有多个设备平台,为每个模块装独立控制的VRV空调提供可能。

  外墙材质以卡其棕铝板为主,减弱医疗建筑的严肃感,带来亲切温暖的活跃气氛。

  空中绿化平台、屋顶绿化等设计,将建筑与绿化很好的融合在一起,打造生态型的绿色建筑。



-END-