【学术交流】我院青年设计师参加维也纳论坛

2019-10-11

为更好的给青年设计师搭建一个开放交流的发声平台,深入的感知、体验建筑,多方面的交流、解读建筑,近日我院禾下工作室青年设计师们前往维也纳与来自世界各地的业界专家学者,以嘉兴“银杏天鹅湖”项目为背景,愉快地探讨交流,设计师们为大家带来了精彩纷呈的项目分享。




项目分享


银杏天鹅湖


项目位于嘉兴的秀洲区油车港镇,银杏天鹅湖的四个主要元素是:村落、岛屿、湖和银杏林 ,湖被岛屿和长堤分隔成几个区域,每个区域都因为所在环境和建设项目的功能,形成不同的主题



1、银杏林 Ginkgo Forest 

银杏是整个公园的灵魂,贯穿整个艺术小镇,银杏林中步道串联起室

外瑜伽、室外冥想、咖啡吧、室外艺术、树屋、登高塔......


2、村落village

村落被改造成银杏艺术村,集合了民宿、艺术家工作室、工作坊、艺术品商店、参与性特色餐饮等功能。


3、 islands

岛是艺术和生态环境的结合

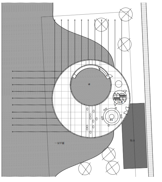
4、建筑场地-主入口车站

用地面积:3788 ㎡

建筑面积 1800 ㎡

功能 :游客集散中心


建筑场地-游船码头

用地面积 909 ㎡

建筑面积 600 ㎡

功能 :游船码头

建筑场地-小教堂

用地面积:1329 ㎡

建筑面积:200 ㎡

功能:小教堂


建筑场地-湖畔站

用地面积:1256 ㎡

建筑面积 240 ㎡

功能:车站,小剧场, 观景平台