“湖山自在,有凤归巢”—— 蓝城凤起巢鸣

2019-03-27

陶渊明的理想

“朝临风露、暮听归鸟”的桃花源;

亚里士多德的执着

是始终相信世间有一个“幸福岛”;

庄子的归宿

“自在人间逍遥游”的“蝴蝶梦”;

面对生活

我们每个人都是理想主义的追梦者。

。。

蓝城凤起巢鸣


|背景区位|

 -省府半小时经济圈-

基地位于合肥市巢湖板块,

合肥向东,巢湖环岸一派生机盎然。

省会半小时经济圈、环巢湖科创走廊的美好

图景正在这里一一落地, 

巢湖半岛的发展卷起合肥人的湖居时代

 区位图


-环山面水,大美巢湖-

凤起巢鸣落子巢湖紧依800里巢湖烟波浩淼, 

距省政务中心仅20分钟车程,环湖大道一路畅通,风景旖旎,

38公里湖景生态长廊,徜徉湖岸

三大湿地公园天绘丹青;

姥山岛隔岸相望,珍藏湖天第一胜境

在这里,每天享受湖岸微风,明媚的花鸟。

 巢湖风光


|项目初探|

-大学城发展浪潮的先锋-

【用地信息】 本项目东至黄师路、西至张疃路、南至竺城路,北至半岛大道。规划用地面积约75600㎡(113.40亩)。

地块一(居住用地):约61597㎡(合92.40亩);其中地块一(1-1)约合41.61亩,地块一(1-2)约合50.79亩。容积率1.5。地块二(商业用地):约合21.00亩;容积率2.0

【周边概况】基地毗邻黄麓大学城,目前周边建有三所高校,六所高校规划确立,其南部的黄麓大学城规划师生人数五万人

基地周边综合性商业配套不足,现状教育、医疗配套集中在镇区。

基地内部现存一处水塘,西北角为巢湖半岛规划展示中心,北面为巢湖黄麓恒源水业有限公司,南侧为安徽省组织干部学院。

 

 



|整体布局|

-漫步自然的舒心体验-

u 依托中心水塘,拟规划打造景观核心。

u 建筑与生态融合,延伸中心水塘的水网系统通过水系引入自然形成多景观宜居组团。

u 依据规划条件,合理布置场地的车行出入口与人气集聚点。

u 建筑排布整体南偏东15°,合理规避建筑与道路将产生夹角过大的问题。

▲ 天际线分析图

 功能分布图/整体鸟瞰


-空间营造,缔造归心家园-

集中强化中央活动交流功能,重点打造中央景观,宅间组团就近分布活动场地。

结合地形设置运动活动场地,借助地形减少对居住区噪声干扰,背风,防西晒,靠近入口、道路设置综合活动场地(尽量远离社区)


 规划总平面


|建筑风格|

-书香弥漫,人文浓郁建筑传承-

凤起巣鸣的居住价值,不仅是无可复制的自然景观,

更因巢湖半岛深厚的人文底蕴而令人向往。

从宋朝诗人陆游到文坛泰斗郭沫若,

千百年来文人墨客向往的巢湖,遍布诗题胜迹。

 “巢湖四上将冯玉祥、张治中、李克农、温宗仁谱写传奇;

当代书法大家林散之、画家童雪鸿,英才辈出;

百年名校黄麓师范,培育了合肥一代代的杰出人才

 

-“民国风新中式匠心范本-

根据城市色彩控制与风格引导,

确定以“现代中式+民国风”为项目主流建筑风格。

依托“民国风情,书香黄麓”的基调定位,

结合传统民国风与现代的元素,

通过中式四坡顶、白墙、精细雕塑的运用,

白玻、局部干挂石材的有机融合,彰显民风优雅而不张扬;

同时遵循传统园林造园手法,

赋予建筑最意蕴的点缀,

即使在室内居住、办公,

也能感受大自然的清新惬意。

 住宅效果图


|户型设计|

-匠工格物,岂止于美-

从户型的实际需求出发,设计10可售户型

根据户型面积不同进行差异化设计,

户型设计南北通透,在保证节能的前提下,

加大开窗面积,保证足够的窗墙比

亦尽可能多的让各户型具有全景景观阳台

独立式玄关、独立式餐厅,卧室设走入式衣柜成为标配常态

同时,局部适当增加特色(个性)空间,

部分住宅底层设置下跃层户型。

 部分户型图


|配套体系|

-大学城的商业宜居融合共生-

商业方案设计秉持“以现代诠释传统”的理念,

充分结合传统建筑(坡顶、青砖黛瓦等)与现代建筑

(玻幕、时尚雕塑等)经典元素,

将文化精神注入建筑群落之中

使独特的地域文化在房屋、街巷、广场一一呈现。

亦根据黄麓镇大学城定位及商业市场调研,

注入活力业态,创意空间,迎合大学生消费特点。

同时商业局部也是未来社区配套的综合载体

多者环环相扣,共融共生。

 商业效果图


|生活馆|

-起于皖系传统,着眼现代技艺-

生活馆前期用于项目展示及销售,后期结合商业功能使用,

其建筑造型衍变徽派传统的建筑形制

屋顶采不对称曲面坡屋顶,灵动却留有徽建韵味;

一层采用大量玻璃幕墙,打开景观视线,引景入内,

整体古朴犹存,韵律十足,张弛有度。

 生活馆效果图


-院落入则安宁 -

生活馆以书吧、颐养为主题, 

开放室内书架与阅读的情景,增加室内外交流;

生活馆不仅是“人与建筑自然”沟通的媒介,

更是黄麓书香弥漫,人文浓郁的承载与见证。

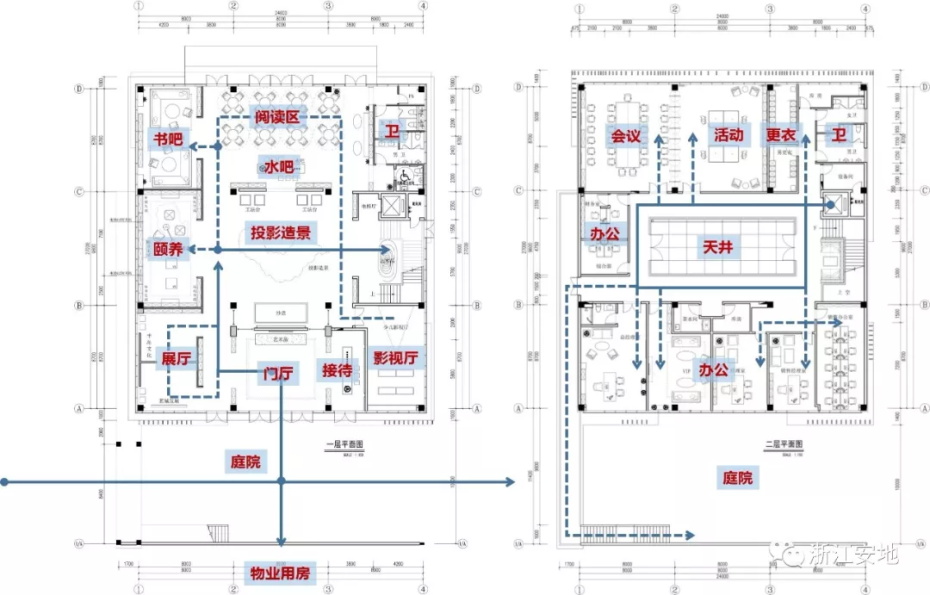
 生活馆平面图

 生活馆平入口效果

 生活馆庭院效果



一方水土养一方人,一方人孕育文化

我们认为每一个建筑都并非孤立地在城市中生长,

们希望通过对地域文化的探寻

挖掘项目背后所暗含对城市层面的意义

我们的项目充分融入地方特色,整合城市肌理,

补充完善城市的功能,提升区域形象

才是设计应有的归宿这也正是我们的使命

·END·