2018安地优秀作品(四)台州市葭沚老街详细规划设计

2019-02-25

1.区位分析

2.规划范围

 

3.历史价值

 

4.发展现状与问题总结

1.相关上位规划衔接

2.规划愿景

3.总体规划定位

1.规划构思

2. 道路交通组织

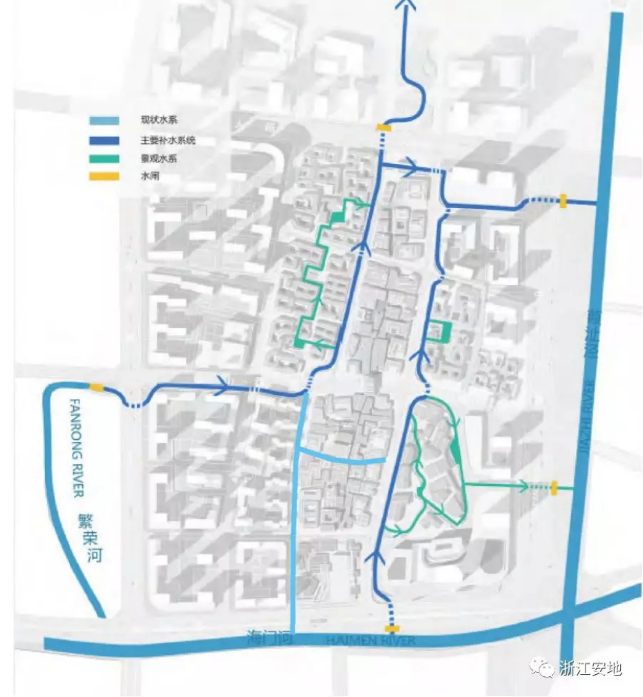
3. 水系贯通

4.景观提升( 芦苇活用)

5. 街区有机更新

6.平面布局

7.业态规划