首页
走进安地
安地介绍
安地理念
荣誉资质
组织结构
设计团队
公司业绩
MILAN米兰体育·(中国)官方网站
中心新闻
行业新闻
精品案例
建筑
景观
规划
古建
诚聘英才
联系方式
相约夏季 | 郎溪响龙峡漂流项目
建筑
景观
规划
古建
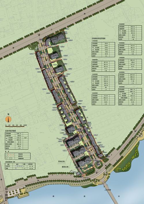
和县镇淮商业街
2012-05-17
LD乐动·(中国)官方网站
|
安博网
|
华体会体育(中国)hth·官方网站
|
开云手机在线登陆入口 (中国)官方网站
|
开云在线登录
|
华体育网页版
|
华体育网页版登录入口
|
星空体育·(中国)官方网站
|
安博官方网站
|